Рубеж ИП 212-1В-R3-Н-М20
- Производитель: Рубеж
- Пришлите полную спецификацию на почту zakaz@deviceden.ru и получите оптовую скидку.
- Срок доставки:1-2 дня
- Минимальный заказ:3000 руб.
- Мы принимаем:Безналичная оплата для юр. лиц

сертифицирован

дилер

доставка
Извещатели выполняют следующие функции:
- измерение температуры окружающей среды
- расчет скорости изменения температуры
- передачу сигнала Пожар в приемно-контрольный прибор
- индикацию режима работы извещателя
- тестирование работоспособности с помощью магнита
Питание и информационный обмен извещателей осуществляется по АЛС.
В системе каждый извещатель занимает один адрес.
Извещатель ИП101-1В-R3 конструктивно выполнен в едином корпусе. Чувствительный элемент извещателя ИП101-1В-R3 интегральный датчик температуры с линейной характеристикой.
Извещатель ИП102-1В-R3 cостоит из корпуса и гибкого высокотемпературного кабельного термодатчика. Чувствительный элемент извещателя ИП102-1В-R3 кабельная термопара с НСХ ХК(L).
Температура срабатывания (класс) и тип извещателя (максимальный, максимально-дифференциальный) задаются при конфигурировании извещателя.
Маркировка взрывозащиты извещателей в зависимости от исполнения 1Ex db IIB T6 Gb Х или 1Ех db [ib] ІІВ Т6 Gb Х, где знак Х означает особые условия монтажа и эксплуатации
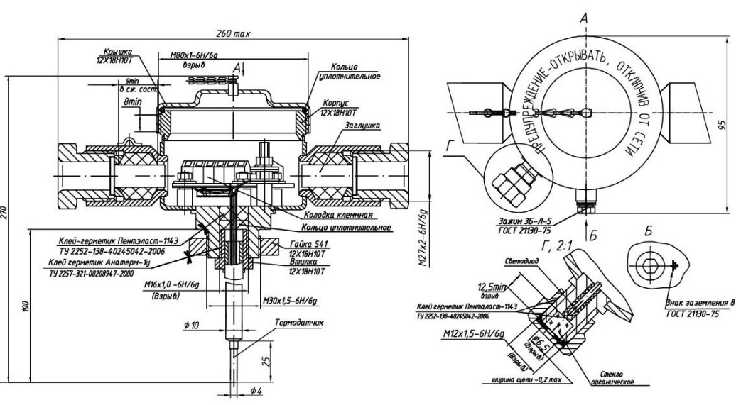
-Габаритный чертеж ИП101-1В R3-НК в корпусе из нержавеющей стали, совмещенный с чертежом взрывозащиты. .

Пример обозначения ИП101-1В-R3 и ИП102-1В-R3
При записи в технической документации и при заказе необходимо указать:
![]()
1.Тип извещателя и его модели:
- ИП101-1В-R3
- ИП102-1В-R3,
2. Температура эксплуатации:
- Р расширенная температура эксплуатации от минус 60 до +115 С
- без обозначения температура эксплуатации от минус 60 до +85 С .
3.Символ Р (вместо температурного класса), класс извещателя не определен, устанавливается на объекте потребителем.
4. Материал корпуса извещателя и способ установки извещателя:
-А алюминиевый сплав с защитным покрытием, установка на кронштейне,
-НС коррозионностойкая сталь 12Х1Н10Т, установка на стене (для ИП101-1В не применяется),
-НК коррозионностойкая сталь 12Х18Н10Т, установка на кронштейне
5.Тип штуцера кабельного ввода и/или резьбовой заглушки:
-Т(или Т-G3/4) для прокладки кабеля в трубе с присоединительной резьбой G3/4-В,
-Т- G1/2 -для прокладки кабеля в трубе с присоединительной резьбой G1/2-В, диаметр наружной изоляции кабеля от 8 до 12 мм,
-К для открытой прокладки кабеля,
-Б- под бронированный кабель,
-БСЗ -под бронированный кабель с возможностью заземления экрана кабеля внутри кабельного ввода, диаметры кабеля со снятой броней от 8 до 14 мм или от 14 до 18 мм,
- МG1/2- под прокладку кабеля диаметром от 8 до 14 мм в металлорукаве
РЗ-Ц(Х)15 через соединитель металлорукава ВМ15 (РКН15, МВ(РКн)15,
- МG3/4- под прокладку кабеля диаметром от 8 до 18 мм в металлорукаве
РЗ-Ц(Х)20 через соединитель металлорукава ВМ20 (РКН20, МВ(РКн)20),
- М20- под прокладку кабеля диаметром от 8 до 14 мм в металлорукаве Герда-МГ-16 через соединитель металлорукава Герда-СГ-Н-М20х1,5,
- М25 - под прокладку кабеля диаметром от 14 до 18 мм в металлорукаве Герда-МГ-22 через соединитель металлорукава Герда-СГ-Н-М25х1,5,
- З-М27 съемная резьбовая заглушка вместо кабельного ввода, резьба на корпусе М27х2,
Примечание при необходимости поставки с извещателями разных кабельных вводов и/или заглушек обозначение писать через плюс, например: К+Б, М25+З-М27 или МG1/2+БСЗ.
6.Диаметр подключаемых кабелей (при поставке с кабельными вводами):
- без обозначения - от 8 до 14 мм,
- 18 - для кабелей диаметром от 14 до 18 мм,
7. Длина кабельного термодатчика в метрах (только для ИП102-1В),
8.Наличие комплекта монтажных частей КМЧ 908.2784.00.000 МЧ (только для ИП102-1В),
- Модель: ИП 212-1В-R3-Н-М20
- Материал корпуса извещателя и способ установки извещателя: коррозионностойкая сталь 12Х18Н10Т, установка на кронштейне
- Тип штуцера кабельного ввода и/или резьбовой заглушки: М20 - под прокладку кабеля диаметром от 8 до 14 мм в металлорукаве Герда-МГ-16 через соединитель металлорукава Герда-СГ-Н-М20х1,5
- Питание: от АЛС (24-36 В)
- Ток потребления извещателя, не более: 0,35 мА
- Температура срабатывания: 54 85С
- Масса извещателя, не более: 1,2 кг
- Рабочий диапазон температур: от минус 60 до плюс 85С
ВНИМАНИЕ!! Минимальная сумма заказа 3000 руб.
В онлайн гипермаркете Device Den вы можете оплатить заказ через:
- Безналичный расчёт (доступен для юридических лиц)
- Оплата картой онлайн
Для выбора оплаты товара с помощью банковской карты на странице заказа необходимо выбрать способ оплаты «Оплата картой онлайн». Оплата происходит через платёжную систему Robokassa с использованием банковских карт следующих платежных систем: Мир, Visa и MasterCard
Принимаем оплату только в рублях. Цены всех товаров, кроме лицензий на программное обеспечение, включают в себя НДС.
Мы не принимаем карты American Express.
Описание процесса передачи данных
Для оплаты (ввода реквизитов Вашей карты) Вы будете перенаправлены на платёжный шлюз платежного сервиса Робокасса. Соединение с платёжным шлюзом и передача информации осуществляется в защищённом режиме с использованием протокола шифрования SSL. В случае если Ваш банк поддерживает технологию безопасного проведения интернет-платежей Verified By Visa, MasterCard SecureCode, MIR Accept, J-Secure для проведения платежа также может потребоваться ввод специального пароля.
Настоящий сайт поддерживает 256-битное шифрование. Конфиденциальность сообщаемой персональной информации обеспечивается платежным сервисом Робокасса. Введённая информация не будет предоставлена третьим лицам за исключением случаев, предусмотренных законодательством РФ. Проведение платежей по банковским картам осуществляется в строгом соответствии с требованиями платёжных систем МИР, Visa Int., MasterCard Europe Sprl, JCB.
Курьерская доставка в нашем магазине работает с 9:00 до 23:00 без выходных по Москве и ближайшей МО. Обратите внимание, что курьер передает товар для проверки только после оплаты и не консультирует по приобретённому товару. Доставка во все регионы России осуществляется круглосуточно с помощью транспортных компаний. Самовывоз из офиса доступен с пн-пт с 10:00 до 18:00.
- При сумме заказа менее 70 000 рублей - 590 рублей;
- При сумме заказа более 70 000 рублей - бесплатно.
- При сумме заказа менее 150 000 рублей - 890 рублей;
- При сумме заказа более 150 000 рублей - бесплатно.
Примечание! Есть исключения по отправке крупногабаритных грузов.
ВНИМАНИЕ! Отправка заказа в регионы России осуществляется только после 100% предоплаты.
- При наличии товара на складе доставка осуществляется на следующий день;
- Возможна экспресс доставка при оформлении заказа до 12:00 текущего дня;
- При отсутствии товара на складе сроки поставки уточняйте у менеджера.
- Срок доставки в регионы России может составлять от 1 до 14 дней в зависимости от удалённости региона и выбранного способа доставки.
Примечание! Возможна доставка товара до транспортной компании в день оформления заказа.





Примечание! По просьбе клиентов отправляем заказ любой другой транспортной компанией.