Тахион ВУК-28У-PoE+ У11 У81
- Производитель: Тахион
- Пришлите полную спецификацию на почту zakaz@deviceden.ru и получите оптовую скидку.
- Срок доставки:1-2 дня
- Минимальный заказ:3000 руб.
- Мы принимаем:Безналичная оплата для юр. лиц

сертифицирован

дилер

доставка
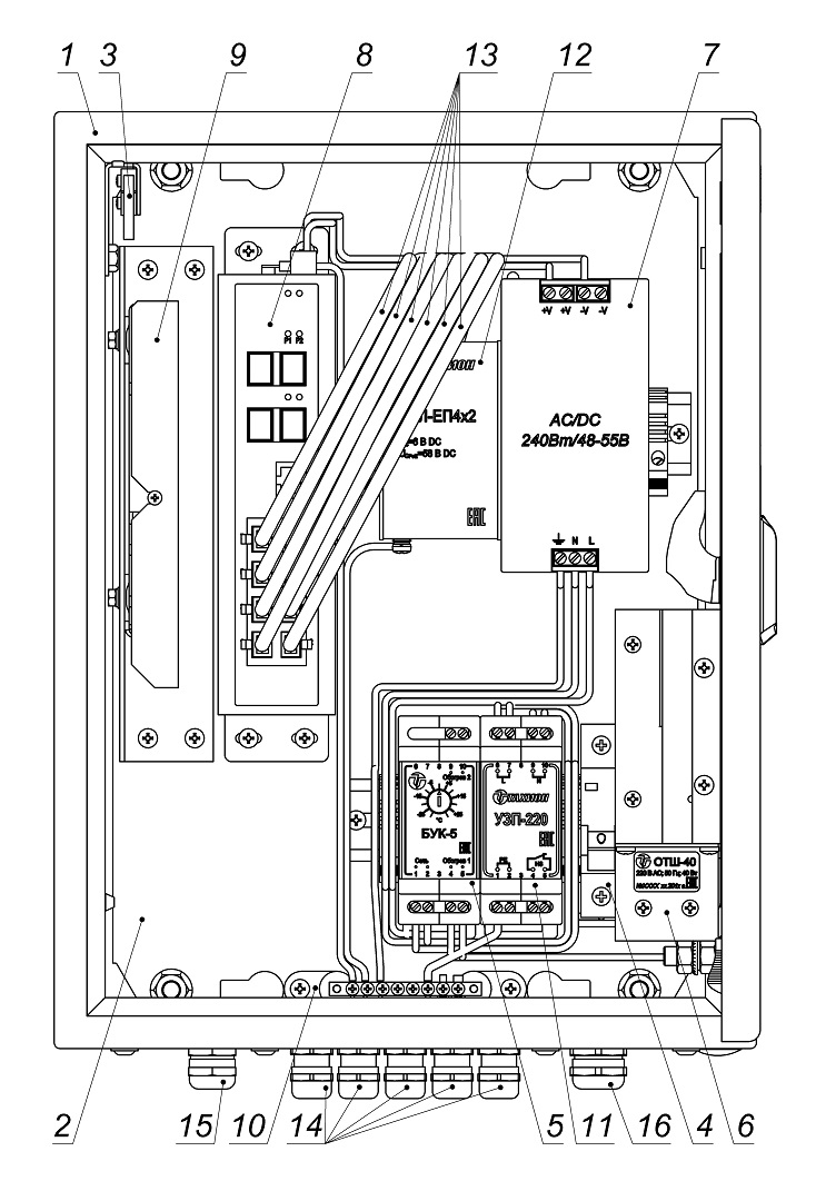
Изделие оборудовано
- блоком управления климатом (БУК-5), предназначенным для управление обогревом,
- обогревателем термошкафов ОТШ-40, оборудованным встроенным биметаллическим выключателем, ограничивающим температуру поверхности радиатора до +90°С,
- устройством защиты электропитания УЗП-220 предназначенным для защиты оборудования, подключённого к линиям электропитания переменного тока 220 В, от наведенных напряжений, вызванных электромагнитными импульсами высоких энергий (грозовыми, электростатическими разрядами и т.д.),
- блоком защиты БЗЛ-ЕП4х2, предназначенным для защиты от импульсных перенапряжений 8-и портов локальной сети Ethernet 10/100/1000 Base-TX, в том числе, использующих технологию PoE (IEEE 802.3af/at/bt),
- AC/DC преобразователем 230/48-55В, 240Вт,
- тамперным контактом для сигнализации о несанкционированном доступе.
Климатическое исполнение изделия соответствует УХЛ1, 5 ГОСТ 15150-69. Степень защиты IP 66.
Состав изделия:
| 1. Шкаф 300х300х210мм | 1шт. |
| 2. Монтажная панель | 1шт. |
| 3. Тамперный контакт (S2) | 1шт. |
| 4. Выключатель автоматический ВА47-29 2P6A/4,5кА хар-ка С 'TDM' (S1) | 1шт. |
| 5. Блок управления климатом (БУК-5) | 1шт. |
| 6. Обогреватель (ОТШ-40) | 1шт. |
| 7. Устройство защиты питания 230В (УЗП-220) | 1шт. |
| 8. AC/DC преобразователь 230/48-55В, 240Вт | 1шт. |
| 9. Управляемый PoE коммутатор 8 портов Eth + 4 порта SFP | 1шт. |
| 10. Патч-корд UTP, кат.5е | 8шт. |
| 11. Оптический кросс с адаптерами SC-SC (4 шт.) | 1шт. |
| 12. Шина заземления (Ш1) | 1шт. |
| 13. Блок защиты портов в сети ETHERNET c питанием РоЕ (БЗЛ-ЕП4x2) | 1шт. |
| 14. Гермоввод PBA9-08, Ø кабеля 4,5-8 мм | 8шт. |
| 15. Гермоввод PBA11-10, Ø кабеля 6-10 мм | 2шт. |
| 16. Гермоввод PBA13,5-11, Ø кабеля 7-12 мм | 2шт. |
- Основные технические характеристики: Значение
- Питание изделия:
- напряжение питания: 230 В AC, 50 Гц
- максимальный ток нагрузки: 6 А
- Обогрев:
- напряжение питания: 230 В AC, 50 Гц
- потребляемая мощность: 40 Вт
- Диапазон рабочих температур: 60 С +50 С
- Интерфейсы:
- порт 10/100/1000 Base-T RJ-45 PoE, watchdog: 8 шт.
- порт 1000 Base-X SFP: 4 шт.
- консольный порт: 1 шт.
- PoE:
- по стандарту PoE IEEE 802.3af/at: 6 портов
- по стандарту PoE IEEE 802.3af/at/bt: 2 порта
- общий бюджет PoE*: 230 Вт
- Максимальная потребляемая мощность: 290 Вт
- Материалы и поверхности изделия:
- корпус (дверь): листовая сталь 1,25 (1,5) мм, грунтовка, порошковое покрытие
- панель монтажная: листовая сталь 2 мм, оцинкованная
- Габаритные размеры (без гермовводов) ШхВхГ: 300х400х210 мм
- Вес c упаковкой: 15 кг
ВНИМАНИЕ!! Минимальная сумма заказа 3000 руб.
В онлайн гипермаркете Device Den вы можете оплатить заказ через:
- Безналичный расчёт (доступен для юридических лиц)
- Оплата картой онлайн
Для выбора оплаты товара с помощью банковской карты на странице заказа необходимо выбрать способ оплаты «Оплата картой онлайн». Оплата происходит через платёжную систему Robokassa с использованием банковских карт следующих платежных систем: Мир, Visa и MasterCard
Принимаем оплату только в рублях. Цены всех товаров, кроме лицензий на программное обеспечение, включают в себя НДС.
Мы не принимаем карты American Express.
Описание процесса передачи данных
Для оплаты (ввода реквизитов Вашей карты) Вы будете перенаправлены на платёжный шлюз платежного сервиса Робокасса. Соединение с платёжным шлюзом и передача информации осуществляется в защищённом режиме с использованием протокола шифрования SSL. В случае если Ваш банк поддерживает технологию безопасного проведения интернет-платежей Verified By Visa, MasterCard SecureCode, MIR Accept, J-Secure для проведения платежа также может потребоваться ввод специального пароля.
Настоящий сайт поддерживает 256-битное шифрование. Конфиденциальность сообщаемой персональной информации обеспечивается платежным сервисом Робокасса. Введённая информация не будет предоставлена третьим лицам за исключением случаев, предусмотренных законодательством РФ. Проведение платежей по банковским картам осуществляется в строгом соответствии с требованиями платёжных систем МИР, Visa Int., MasterCard Europe Sprl, JCB.
Курьерская доставка в нашем магазине работает с 9:00 до 23:00 без выходных по Москве и ближайшей МО. Обратите внимание, что курьер передает товар для проверки только после оплаты и не консультирует по приобретённому товару. Доставка во все регионы России осуществляется круглосуточно с помощью транспортных компаний. Самовывоз из офиса доступен с пн-пт с 10:00 до 18:00.
- При сумме заказа менее 70 000 рублей - 590 рублей;
- При сумме заказа более 70 000 рублей - бесплатно.
- При сумме заказа менее 150 000 рублей - 890 рублей;
- При сумме заказа более 150 000 рублей - бесплатно.
Примечание! Есть исключения по отправке крупногабаритных грузов.
ВНИМАНИЕ! Отправка заказа в регионы России осуществляется только после 100% предоплаты.
- При наличии товара на складе доставка осуществляется на следующий день;
- Возможна экспресс доставка при оформлении заказа до 12:00 текущего дня;
- При отсутствии товара на складе сроки поставки уточняйте у менеджера.
- Срок доставки в регионы России может составлять от 1 до 14 дней в зависимости от удалённости региона и выбранного способа доставки.
Примечание! Возможна доставка товара до транспортной компании в день оформления заказа.





Примечание! По просьбе клиентов отправляем заказ любой другой транспортной компанией.
Теги: Тахион ВУК-28У-PoE+ У11 У81, Класс POE:802.3af, 802.3at, 802.3bt, Цвет:Серый, Исполнение:В шкафу, Материал корпуса:Металл, Количество портов:12, Макс. кол-во портов POE:8, Промышленный:Да, Уличное исполнение:Да, Количество LAN-портов:8, Тип устройства:Коммутатор, Тип управления коммутатора:Управляемый, Поддержка POE:Да, Возможность установить в стойку:Нет, SFP:4, Количество WAN-портов:4, Суммарная мощность Poe:230, Мощность Poe-порта:60, Скорость передачи данных:1 Гбит, с