AccordTec Комплект AT-VD A752C/SD WH + AT-VD 309H SL
- Производитель: AccordTec
- Пришлите полную спецификацию на почту zakaz@deviceden.ru и получите оптовую скидку.
- Срок доставки:1-2 дня
- Минимальный заказ:3000 руб.
- Мы принимаем:Безналичная оплата для юр. лиц

сертифицирован

дилер

доставка
AccordTec AT-VD A752C/SD WH - цветной 4-x проводный, 7' LCD TFT (800х480) видеодомофон.
Особенности:
* Для записи по детектору движения во избежании ложных срабатываний не рекомендуется использовать вызывные панели с широким углом обзора (больше 90 градусов)
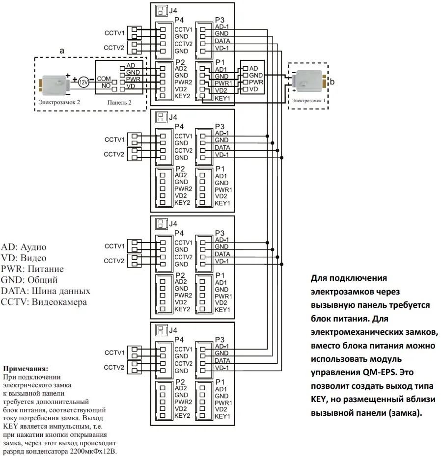
Название компонентов и их функции
Схема максимальной конфигурации
Пример электрической схемы соединений. Четыре монитора и две вызывные панели.
Комплект поставки
AccordTec AT-VD A309H SL - 4-х проводная цветная накладная вандалоустойчивая HD/CVBS видеопанель 1080P.
Особенности:
ВНИМАНИЕ!! Минимальная сумма заказа 3000 руб.
В онлайн гипермаркете Device Den вы можете оплатить заказ через:
- Безналичный расчёт (доступен для юридических лиц)
- Оплата картой онлайн
Для выбора оплаты товара с помощью банковской карты на странице заказа необходимо выбрать способ оплаты «Оплата картой онлайн». Оплата происходит через платёжную систему Robokassa с использованием банковских карт следующих платежных систем: Мир, Visa и MasterCard
Принимаем оплату только в рублях. Цены всех товаров, кроме лицензий на программное обеспечение, включают в себя НДС.
Мы не принимаем карты American Express.
Описание процесса передачи данных
Для оплаты (ввода реквизитов Вашей карты) Вы будете перенаправлены на платёжный шлюз платежного сервиса Робокасса. Соединение с платёжным шлюзом и передача информации осуществляется в защищённом режиме с использованием протокола шифрования SSL. В случае если Ваш банк поддерживает технологию безопасного проведения интернет-платежей Verified By Visa, MasterCard SecureCode, MIR Accept, J-Secure для проведения платежа также может потребоваться ввод специального пароля.
Настоящий сайт поддерживает 256-битное шифрование. Конфиденциальность сообщаемой персональной информации обеспечивается платежным сервисом Робокасса. Введённая информация не будет предоставлена третьим лицам за исключением случаев, предусмотренных законодательством РФ. Проведение платежей по банковским картам осуществляется в строгом соответствии с требованиями платёжных систем МИР, Visa Int., MasterCard Europe Sprl, JCB.
Курьерская доставка в нашем магазине работает с 9:00 до 23:00 без выходных по Москве и ближайшей МО. Обратите внимание, что курьер передает товар для проверки только после оплаты и не консультирует по приобретённому товару. Доставка во все регионы России осуществляется круглосуточно с помощью транспортных компаний. Самовывоз из офиса доступен с пн-пт с 10:00 до 18:00.
- При сумме заказа менее 70 000 рублей - 590 рублей;
- При сумме заказа более 70 000 рублей - бесплатно.
- При сумме заказа менее 150 000 рублей - 890 рублей;
- При сумме заказа более 150 000 рублей - бесплатно.
Примечание! Есть исключения по отправке крупногабаритных грузов.
ВНИМАНИЕ! Отправка заказа в регионы России осуществляется только после 100% предоплаты.
- При наличии товара на складе доставка осуществляется на следующий день;
- Возможна экспресс доставка при оформлении заказа до 12:00 текущего дня;
- При отсутствии товара на складе сроки поставки уточняйте у менеджера.
- Срок доставки в регионы России может составлять от 1 до 14 дней в зависимости от удалённости региона и выбранного способа доставки.
Примечание! Возможна доставка товара до транспортной компании в день оформления заказа.





Примечание! По просьбе клиентов отправляем заказ любой другой транспортной компанией.
Теги: AccordTec, AccordTec Комплект AT-VD A752C/SD WH + AT-VD 309H SL, В наличии, Диагональ экрана, 7, Тип, Домофон (переговорное устройство), Количество каналов, 4, Подключение доп. камер, 2, Наличие интеркома, Да, Кол-во вызывных панелей, 2, Кол-во мониторов, 4, Наличие трубки, Нет, Способ монтажа, Настенный, С функцией день/ночь, Да, Технология/способ установки, Многопроводной, Система изображения, AHD, TVI, CVI, Цвет внутреннего домофона, Белый, Тип связи, Одновременная передача и прием, Функция общего вызова, Да, Рабочая температура (мин), °C, От -30 до +60, С функцией памяти, Да, С видео, Да, Тип соединения устройства, Проводное, Количество внутренних домофонов, 1, Функция одиночного вызова, Да, Внутр. связь, Да, Расширение до максимального количества наружных блоков, 4, Расширение до максимального количества внутренних блоков, 4, Угол обзора камеры, 110, Количество наружных домофонов, 1, Степень защиты (IP), IP66, 21 341 руб.